福島市八木田字並柳 中古戸建

5,980万円

福島県福島市八木田字並柳

東北本線「福島」駅徒歩23分

福島交通「曽根田」駅徒歩29分

福島交通「美術館図書館前」駅徒歩38分

価格
5,980万円
間取り/建物面積
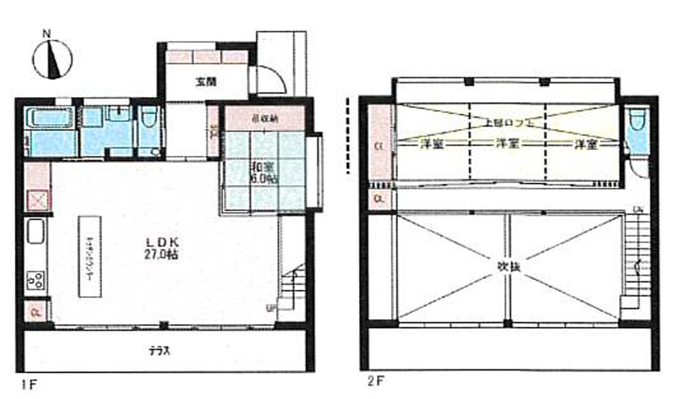
2LDK/115.89㎡
所在地
福島県福島市八木田字並柳
築年
2018年2月(築8年)
駐車
有(2台)
交通

東北本線福島」駅 徒歩23分

福島交通曽根田」駅 徒歩29分

福島交通美術館図書館前」駅 徒歩38分

福島市八木田字並柳 中古戸建の基本情報

物件名
福島市八木田字並柳 中古戸建
価格
5,980万円
建物面積
115.89㎡
土地面積
68.43坪(226.23㎡)
築年月
2018年2月(築8年)
総戸数
-
所在地
福島県福島市八木田字並柳
交通

東北本線福島」駅 徒歩23分

福島交通曽根田」駅 徒歩29分

福島交通美術館図書館前」駅 徒歩38分

福島市八木田字並柳 中古戸建の詳細情報

設備条件
  • 駐車2台可
設備(その他)
    システムキッチン
駐車場/月額
有(2台)/0円
土地権利
所有権
国土法届出
不要
用途地域
第二種住居
取引態様
仲介
引渡し
相談

福島市八木田字並柳 中古戸建で募集中の物件

  1. 35.05坪 (115.89㎡)

    5,980万円(170.61万円/坪)

周辺施設

  • スターバックスコーヒー福島八木田店の画像

    喫茶店・カフェ

    スターバックスコーヒー福島八木田店

    23m(1分)

  • セブンイレブン 福島吉倉店の画像

    コンビニエンスストア

    セブンイレブン 福島吉倉店

    400m(5分)

  • 福島中央病院の画像

    内科

    福島中央病院

    595m(8分)

  • GU(ジーユー) 福島吉倉店の画像

    生活雑貨店

    GU(ジーユー) 福島吉倉店

    745m(10分)

  • ヨークベニマル吉倉店の画像

    スーパー

    ヨークベニマル吉倉店

    953m(12分)

  • カインズ 方木田店の画像

    ホームセンター

    カインズ 方木田店

    1085m(14分)

  • 福島市立岳陽中学校の画像

    中学校

    福島市立岳陽中学校

    1112m(14分)

  • 荒川さくらつづみ河川公園の画像

    公園

    荒川さくらつづみ河川公園

    1136m(15分)

  • コジマ×ビックカメラ 方木田店の画像

    家電製品

    コジマ×ビックカメラ 方木田店

    1196m(15分)

  • 大東銀行福島西支店の画像

    銀行

    大東銀行福島西支店

    1306m(17分)

  • 福島市立吉井田小学校の画像

    小学校

    福島市立吉井田小学校

    1480m(19分)

  • 福島野田町郵便局の画像

    郵便局

    福島野田町郵便局

    1809m(23分)

  • エスパル福島の画像

    デパート

    エスパル福島

    2002m(26分)

近隣の物件

  1. 福島市上鳥渡字しのぶ台

    5SLDK (235.16㎡)

    1,980万円

  2. 福島市丸子字富塚

    5SDK (240.56㎡)

    1,280万円

  3. 福島市渡利字株作

    4K (71.21㎡)

    1,480万円

  4. 福島市上鳥渡字山王

    3LDK (108.47㎡)

    1,650万円

よく見られている物件

  1. 福島市小田字遅沢入

    6DK (146.86㎡)

    530万円

  2. 福島市郷野目字仲

    4LDK (97.70㎡)

    2,970万円

  3. 福島市町庭坂字中通

    3LDK (100.44㎡)

    1,580万円

  4. 福島市泉字清水田

    4LDK (97.71㎡)

    2,490万円

福島市八木田字並柳 中古戸建

お気軽にお問い合わせください

無料お問い合わせ

住まいの窓口福島 運営株式会社バースランド

024-572-3820

09:00~20:00

(休:火・水)