福島市八木田字並柳 中古戸建

5,980万円

福島県福島市八木田字並柳

東北本線「福島」駅徒歩23分

福島交通「曽根田」駅徒歩29分

福島交通「美術館図書館前」駅徒歩38分

価格
5,980万円
間取り
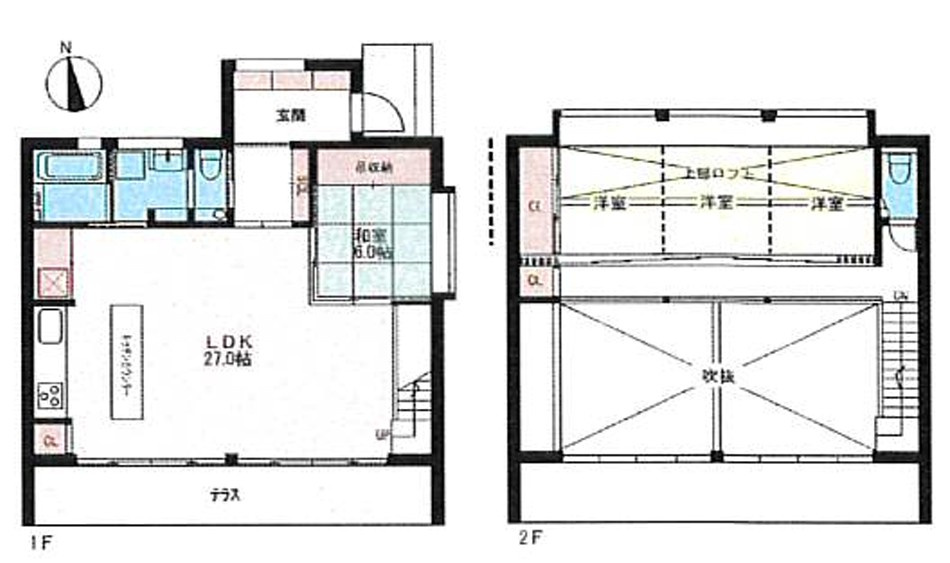
2LDK
土地面積
226.23㎡
所在地
福島県福島市八木田字並柳
交通

東北本線福島」駅 徒歩23分

福島交通曽根田」駅 徒歩29分

福島交通美術館図書館前」駅 徒歩38分

建物面積
115.89㎡
築年月
2018年2月(築8年)

物件の特徴

  • バストイレ別

  • 室内洗濯機置場

  • TVモニタ付きインターホン

セールスポイント

間取り変更可能な未居住戸建です!現在モデルハウスとして使用中!店舗や事務所としても使用できるおしゃれな住宅です♪

基本情報

販売戸数
-
総戸数
-
間取り / 詳細
2LDK
向き
建物面積(坪数)
115.89㎡(35.05坪)
土地面積(坪数)
226.23㎡(68.43坪)
建ぺい率 /
容積率
60%/200%
築年月
2018年2月(築8年)
駐車場 / 月額
有(2台) / 0円
土地権利
所有権
土地
(敷金 / 保証金)
- / -
建物構造
木造 / 2階建
傾斜地部分面積
-
路地状敷地
-
私道負担面積
-
セットバック
高圧線下面積
-
施工会社
-
用途地域
第二種住居
地目 / 地勢
宅地 / -
接道状況
一方(東 公道 16.0m)
国土法届出要否
不要
都市計画
市街化区域
総区画数 /
販売区画数
-/-
現況
完成済み
その他
法令上の制限
建築基準法第22条区域内
取引態様
仲介
引渡し
相談
取引条件の
有効期限
2026年05月01日

設備条件

設備条件
  • 室内洗濯機置場 / フローリング / ロフト付き / 都市ガス / 公営水道 / 公共下水 / 24時間換気システム / 電気有 / 駐車2台可 / ガスコンロ / システムキッチン / バス・トイレ別 / 追焚機能浴室 / 温水洗浄便座 / 洗面台 / トイレ2ヶ所 / 浴室1坪以上 / TVモニタ付インターホン
設備(その他)
    システムキッチン

その他

物件番号
101599797
管理コード
-
建築確認番号
-
情報更新日
2026年04月17日
次回更新予定日
2026年05月01日
取扱会社
  • 住まいの窓口福島 運営株式会社バースランド
  • 福島県福島市天神町8-19  1F
  • TEL:024-572-3820
  • 国土交通大臣 (3) 第8287号
  • (公社) 全国宅地建物取引業保証協会
    (公社) 全国宅地建物取引業保証協会 福島本部
    (一社) 全国賃貸不動産管理業協会
    (一社) リノベーション住宅推進協議会
    (一社) 住宅産業協会

周辺施設

  • スターバックスコーヒー福島八木田店の画像

    喫茶店・カフェ

    スターバックスコーヒー福島八木田店

    23m(1分)

  • セブンイレブン 福島吉倉店の画像

    コンビニエンスストア

    セブンイレブン 福島吉倉店

    400m(5分)

  • 福島中央病院の画像

    内科

    福島中央病院

    595m(8分)

  • GU(ジーユー) 福島吉倉店の画像

    生活雑貨店

    GU(ジーユー) 福島吉倉店

    745m(10分)

  • ヨークベニマル吉倉店の画像

    スーパー

    ヨークベニマル吉倉店

    953m(12分)

  • カインズ 方木田店の画像

    ホームセンター

    カインズ 方木田店

    1085m(14分)

  • 福島市立岳陽中学校の画像

    中学校

    福島市立岳陽中学校

    1112m(14分)

  • 荒川さくらつづみ河川公園の画像

    公園

    荒川さくらつづみ河川公園

    1136m(15分)

  • コジマ×ビックカメラ 方木田店の画像

    家電製品

    コジマ×ビックカメラ 方木田店

    1196m(15分)

  • 大東銀行福島西支店の画像

    銀行

    大東銀行福島西支店

    1306m(17分)

  • 福島市立吉井田小学校の画像

    小学校

    福島市立吉井田小学校

    1480m(19分)

  • 福島野田町郵便局の画像

    郵便局

    福島野田町郵便局

    1809m(23分)

  • エスパル福島の画像

    デパート

    エスパル福島

    2002m(26分)

支払いシミュレーション

月々の支払額

※実際の金額と異なる場合があります。

購入希望物件価格
万円
頭金
万円
金利
%
返済額(ボーナス1回分)
万円
返済期間

※ボーナスは自動で年2回分で計算されます。

近隣の物件

  1. 新築戸建・新築建売 福島市泉先達 御山小・清水中

    福島市泉字先達

    3LDK (102.26㎡)

    2,998万円

  2. 新築戸建・新築建売 福島市大森2期 大森小学校・信夫中学校

    福島市大森字島ノ内

    4LDK (106.09㎡)

    3,299万円

  3. 新築戸建・新築建売 福島市東中央二丁目 野田小・野田中

    福島市東中央2丁目

    4LDK (112.40㎡)

    3,298万円

  4. 新築戸建・新築建売 福島市笹木野天戸畑 野田小・野田中

    福島市笹木野字天戸畑

    4LDK (112.35㎡)

    3,198万円

よく見られている物件

  1. 福島市小田 中古戸建

    福島市小田字遅沢入

    6DK (146.86㎡)

    530万円

  2. 新築戸建・建売 福島市泉字清水台 ハートフルタウン 全3棟

    福島市泉字清水田

    4LDK (97.71㎡)

    2,390万円

  3. 未入居戸建・建売 福島市郷野目 Life Quality 全1棟

    福島市郷野目字仲

    4LDK (97.70㎡)

    2,970万円

  4. 金川町 戸建て

    会津若松市金川町

    7DK (121.95㎡)

    690万円

福島市八木田字並柳 中古戸建

福島市八木田字並柳 中古戸建

5,980万円

-

2LDK(115.89㎡)

お気軽にお問い合わせください

無料お問い合わせ

住まいの窓口福島 運営株式会社バースランド

024-572-3820

09:00~20:00

(休:火・水)